In Budapest

A former industrial building in Budapest’s District 7 has been transformed into compact student apartments, offering a contemporary model for adaptive reuse in the city’s historic fabric.

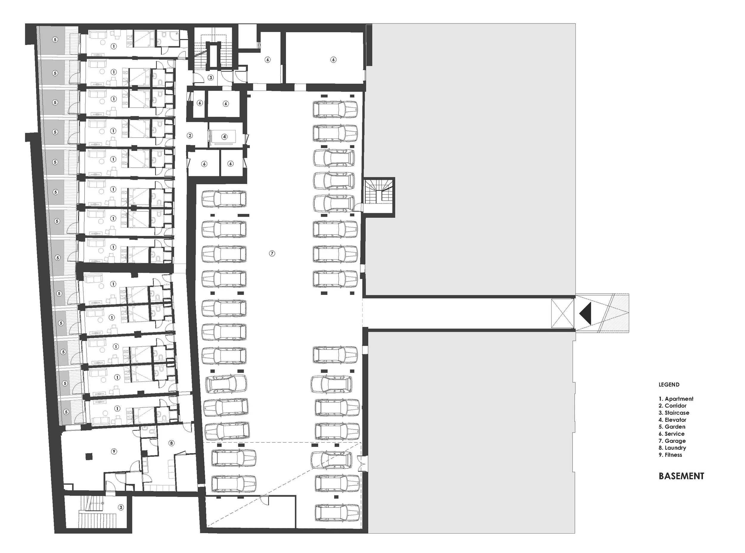
Located just a few minutes from Keleti Railway Station and surrounded by universities, the project—part of the wider In Budapest development—sits behind two listed street-front buildings, hidden from the urban bustle of Rottenbiller Street. Originally built in the 1980s, the structure lacked architectural pedigree yet revealed strong potential for reuse.

Rather than opting for demolition, the design team retained the existing circulation and reinforced concrete frame, turning the limitations of the deep, narrow grid into the foundation of the new concept. The layout now accommodates 25-square-metre micro-apartments aimed at Generation Y students, arranged within the rhythm of the original pillars.

Each unit integrates custom modular furniture that combines kitchen, bathroom and sleeping functions into a single compact core, referencing Le Corbusier’s “machine for living.” Study niches, inserted as façade boxes, extend beyond the structural frame, providing daylight and workspace while freeing the interior for flexible use.

Architecturally, the intervention embraces the raw character of the socialist-era building. Exposed concrete, fireproof coatings, and visible MEP elements are complemented by new façade boxes clad in anthracite trapezoidal steel profiles and translucent polycarbonate—materials that recall the site’s industrial origins while asserting a bold contemporary identity.

By recognizing the value of an overlooked typology, the project challenges the prevailing culture of demolition and façade-retention in Budapest, proposing instead a model of renewal rooted in adaptability and architectural honesty. 

Function: housing
Typology: reuse, monumental
Year of completion: 2020
Area: 4500 m²
Developer: In-Bp Group (www.ingroup.hu)
Architect: Bence Turányi
Project architects: Gyurcsó Renáta, Balla Gábor, Regőczi Dénes
Collaborators: Belevári Zita, Ujfalussy Fruzsina, Fülöp Tamás , Laczkó-Pető Bálint, Oravecz Péter, Papp Mátyás, Pauer Dániel, Sziki Gábor
Photographer: Zsolt Batár

Previous
Previous

Bohn HQ

Next
Next

Jazz Loft